Lotus II
janeiro 18, 2019
LIV636
janeiro 9, 2019

WR

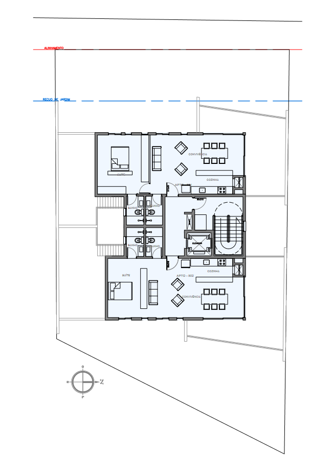
Volumes sóbrios com contrastes entre materiais e aproveitamento da topografia do terreno - estes foram os pontos de partida da identidade arquitetônica deste estudo de Viabilidade, concebido para oferecer unidades habitacionais com planta livre.

Na idealização das unidades a versatilidade de configurações internas norteou o desenvolvimento do projeto, sempre buscando se adequar às necessidades de vida dinâmica do público alvo do empreendimento – foram criadas várias tipologias de apartamentos e, dentro de uma mesma tipologia, podem haver inúmeras variações.

Produto contratado: Estudo de Viabilidade Urbanística e Comercial.
Ano do projeto: 2018
Área total construída: 1.600m²
Número de unidades: 10 apartamentos / 15 vagas
Local: São Leopoldo  

WR

Volumes sóbrios com contrastes entre materiais e aproveitamento da topografia do terreno - estes foram os pontos de partida da identidade arquitetônica deste estudo de Viabilidade, concebido para oferecer unidades habitacionais com planta livre.

Na idealização das unidades a versatilidade de configurações internas norteou o desenvolvimento do projeto, sempre buscando se adequar às necessidades de vida dinâmica do público alvo do empreendimento – foram criadas várias tipologias de apartamentos e, dentro de uma mesma tipologia, podem haver inúmeras variações.

Produto contratado: Estudo de Viabilidade Urbanística e Comercial.
Ano do projeto: 2018
Área total construída: 1.600m²
Número de unidades: 10 apartamentos / 15 vagas
Local: São Leopoldo